JR加島駅徒歩約7分「加島4丁目貸倉庫・作業所・事務所2区画あり・鉄骨スレート葺平屋建」第1種住居地域!
大阪市淀川区加島4丁目8-14
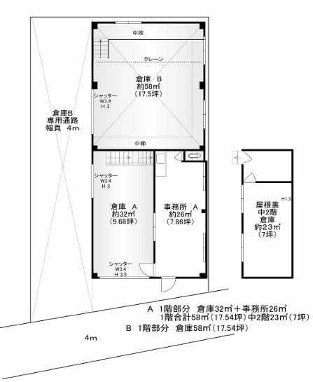
前面4m道路面す・現状渡し・クレーン等残置物あり・近隣駐車場あり!
シャッターW3.4mXH3m・前面スペース搬入搬出時に利用可!
詳細はお問い合わせください!
物件概要
- 種別
- 貸倉庫・事務所
- 月額賃料
- 165,000円(税込)
- 敷金
- 300,000円
- 礼金
- 300,000円
- 使用面積
- 139㎡(約42.08坪)
- 建物構造
- 鉄骨造
- 築年月
- 1987年(月日不詳)
- 階数
- 2階建
- 駐車場
- 無し
- 用途地域
- 第一種住居地域
- 建ぺい率
- 60%
- 容積率
- 200%
- 現況
- 空き
- 引渡
- 相談
- 契約期間
- 2年更新
- 設備
- クレーン等残置物・シャッター
100V有・上下水道 - 備考
- 1階面積A1階約58㎡(17.54坪)・B1階約58㎡(17.54坪)
1階面積A2階約23㎡(7坪)
合計面積A約81㎡(約24.54坪)・B1階約58㎡(17.54坪) - 火災保険
- 加入要
- 賃貸保証会社
- 加入要
- 注意事項
- ※資料と現況が異なる場合は現況を優先します。
※2年以内(2ヶ月)・1年以内(1ヶ月)解約違約金あり
※前面道路4m道路のため、進入車種現地確認すること。
※前面スペース搬入搬出時に利用可
※保証会社(K-NET初回100%・年間更新料10%) - 取引態様
- 仲介
- 物件担当
- 坂元
アクセス
- 所在地
- 大阪市淀川区加島4丁目8-14
- 交通
- JR東西線加島駅徒歩約7分