貸工場・貸倉庫・貸土地
※下記に未掲載の物件は現在取り扱いがございません。

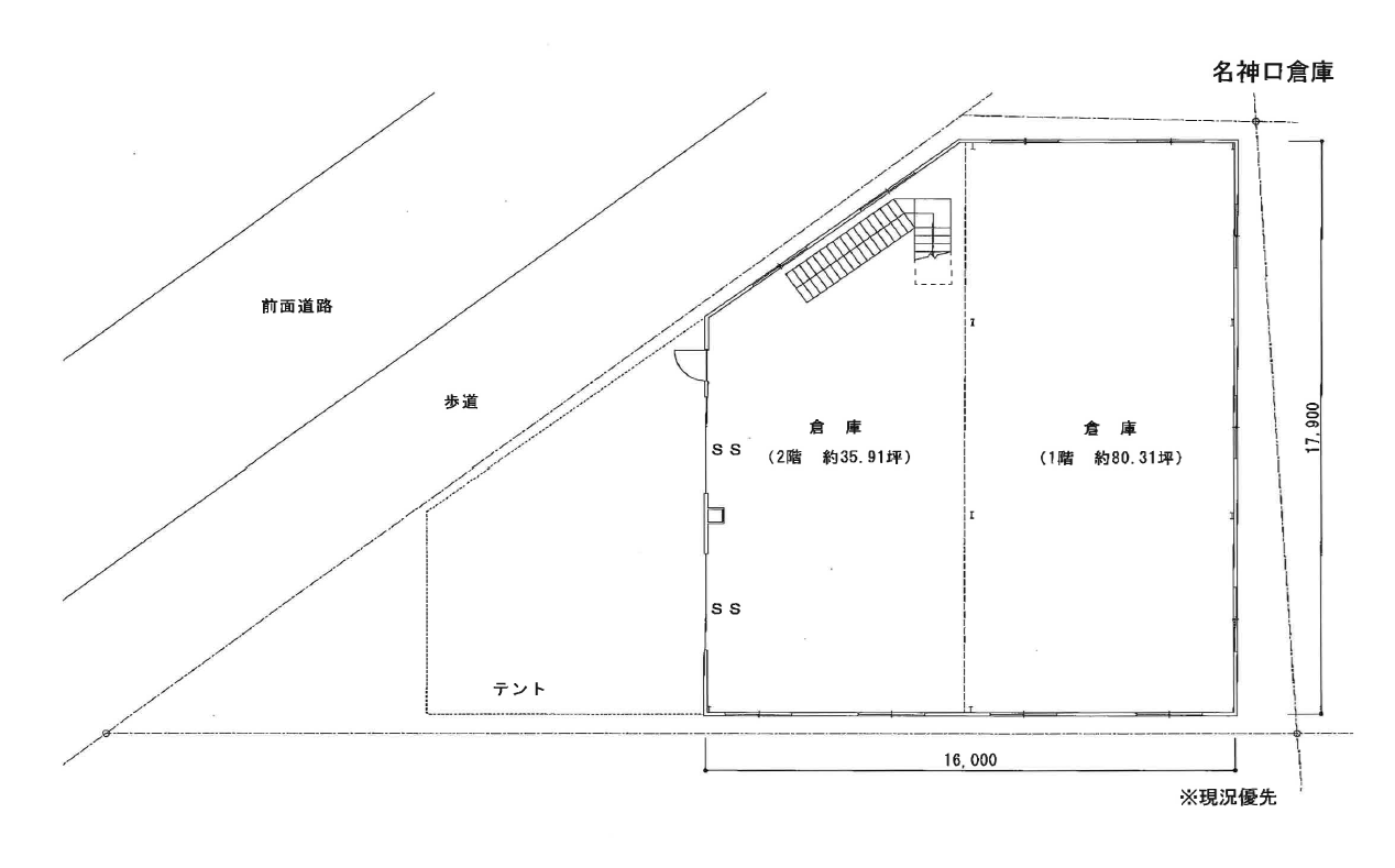
阪神高速豊中南ICすぐ!!「豊中市名神口3丁目貸倉庫約116坪・クレーン2基あり」近隣住居なし!

豊中市名神口3丁目11-3
準工業地域・駐車スペース有・1階倉庫約80.31坪、2階約35.91坪
土地約134坪・鉄骨造2階建・名神高速道路側道沿い
詳細はお問い合わせください!

物件概要

種別
貸倉庫
月額賃料
770,000円(税込)
敷金
5,600,000
礼金
1,540,000
土地面積
443.48㎡
1階面積
265.50㎡
2階面積
118.72㎡
合計面積
384.22㎡
建物構造
鉄骨造
築年月
1985年7月(築40年)
階数
2階建
駐車場
有り
用途地域
準工業地域
建ぺい率
60%
容積率
200%
現況
賃貸中
引渡
2026年8月以降
設備
クレーン1t・0.5t
火災保険
加入要
賃貸保証会社
加入要
注意事項
※資料と現況が異なる場合は現況を優先します。
取引態様
仲介
物件担当
坂元

アクセス

所在地
豊中市名神口3丁目11-3
交通
阪急宝塚線庄内駅徒歩約18分