阪神福駅徒歩約5分「西淀川区福町貸倉庫・事務所」土地約227坪・建物約200坪リフト有!
大阪市西淀川区福町3丁目1-53
鉄骨造2階建・入居時期5月以降内覧は相談
工業地域・10年契約以降2年毎自動更新
前テナント:酒店倉庫⇒電気業倉庫⇒靴卸会社倉庫兼営業所
詳細はお問い合わせください!
物件概要
- 種別
- 貸倉庫・事務所
- 月額賃料
- 1,320,000円(税込)
- 保証金
- 12ヶ月
- 解約引
- 30%
- 1階面積
- 328.17㎡(約99.27坪)
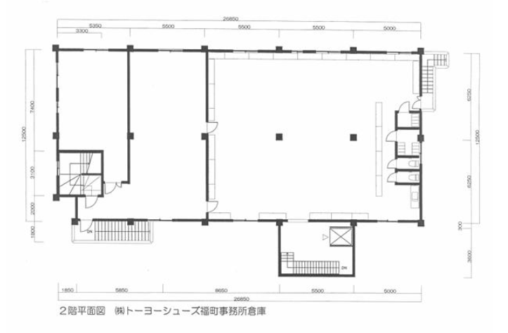
- 2階面積
- 333.58㎡(約100.90坪)
- 合計面積
- 661.75㎡(約200.17坪)
- 建物構造
- 鉄骨造
- 築年月
- 不詳
- 階数
- 2階建
- 駐車場
- 有り
- 用途地域
- 工業地域
- 現況
- 空き
- 引渡
- 即時
- 火災保険
- 加入要
- 賃貸保証会社
- 加入要
- 注意事項
- ※資料と現況が異なる場合は現況を優先します。
※引渡しの条件・時期は相談。
※検査済証なし※リフト・内装残置物は相談
※メンテナンス費・水光熱費は別途実費負担
※返還保証金については、契約月数で均等分割した金額を毎月賃料よりリースバックいたします。 - 取引態様
- 仲介
- 物件担当
- 坂元
アクセス
- 所在地
- 大阪市西淀川区福町3丁目1-53
- 交通
- 阪神電鉄なんば線福駅徒歩約5分